联系我们
江西新源水务工程设备有限公司
联系人:胡先生
电话:18979903058
传真:0799-6677658
地 址:江西省萍乡市经济开发区
首页>>产品中心>>涡流反应、絮凝沉淀技术
产品详情
涡流反应、澄清过滤器
涡流反应、澄清过滤器是我公司根椐哈尔滨建筑工程学院发明的涡旋混凝低脉动沉淀给水处理技术而开发的一种净水设备(200m3/h以下可采用砼结构和钢结构,200m3/h以上建议采用砼结构),它由自动加药装置、拦污式强涡混合器、双向导流微涡折板、复合斜板(管)装置、高效过滤池等主要部分组成。液固分离装置负责污泥收集。
预沉调节池:絮凝沉淀技术要求设备连续运行,减少初沉水的产生,以免浪费药剂。预沉可以除去大颗粒的悬浮物,防止堵塞混合器和排泥孔,同时防止自身能沉淀的悬浮物在反应池中破坏絮凝体反应效果。预沉调节池容积得满足水量停留2-3小时。
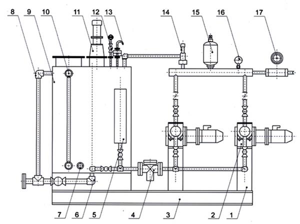
自动加药装置:自动加药装置由计量泵、溶药箱、液位计、Y型过滤器、安全阀、背压阀等部分组成。运行时它通过计量泵连续向混合器投药,并可接收4-20mA模拟信号,根椐水量进行变频加药。
我公司生产的自动加药装置具有:投药、搅拌、输送液体、自动控制与一体的成套设备,它被广泛应用于电厂的原水、锅炉给水、油田地面集输脱水处理系统,石油化工各种加药系统和废水处理系统。如投加混凝剂、磷酸盐、氨液、石灰水、水质稳定剂(缓蚀剂)、阻垢剂、液体杀虫剂等。

1.计量泵支架 2.计量泵 3.公共底座 4.过滤器 5.流量标定装置(选用)
6.排污系统 7.温度计 8.溢流系统 9.搅拌箱 10.液位计
11.搅拌器 12.冲洗系统 13.阻火器(选用) 14.安全溢流阀 15.缓冲器(选用)
16.压力表 17.流量计(选用)

拦污式强涡混合器:用高比例高强度微涡旋的离心惯性效应来克服亚微观传质阻力增加亚微观传质速率,其作用是将药剂快速均匀地扩散到被处理的水中。其内部结构符合流体力学原理,采用分散式投药管,使混凝剂水解产物迅速扩散到水体的每一个细节,使所有胶体颗粒几乎在同一瞬间脱稳并凝聚。混合过程充分、快速,以节省投药量。并具有较小的水流阻力,减小水泵水头损失,减少电耗。在投药分散管前装置拦污器:将固定大颗粒物质、纤维物质截留,使不堵塞混合芯体。检修方便:只需将拦污框提出,不需卸下整个混合器。

双向导流微涡折板:是我公司按照离心惯性效应研发生产的一种双向导流微涡折板絮凝设备:内部构件按照流体力学中边界层理论性质设置,上下进出水时进行导流。第一个水力级折板采用小角度,使水流产生高比例、高强度的高频微涡,反应充分有效形成微涡流,从而利用微涡的动力作用增强矾花颗粒之间的碰撞机率。第二个水力级折板采用中角度,增加了颗粒之间的合理碰撞,形成密实、粒径大、易沉淀分离的矾花;第三个水力级折板采用大角度,悬浮物碰撞由强而弱,形成矾花密实不易破碎的絮凝体,使其保持良好的絮凝效果。在絮凝体形成之后减少水力搅拌,在折板双向导流下平稳进入高效斜管澄清池,为水质澄清打下坚实的基础,以达到设计出水标准。同时微涡折板更具有较小的水流阻力,小水力半径,反应效果好,对原水水量、水温和水质变化的适用性较强,较其它絮凝设备节省药剂,且絮凝效果稳定。

复合斜板(管)沉淀装置:结构布置符合流体力学原理,使水面整体异向流上升,悬浮物絮凝体被阻挡靠自身重力下沉,达到其良好的沉淀效果。复合斜板(管)表面光滑、阻力较小,滑泥效果极好,不易积泥堵塞。设备本体由乙丙共聚材料或304不锈钢制成,采用热熔或氩弧焊焊接连接。镀锌钢管将设备整体上下压紧固定,使其能承受水流上升力和克服自身的浮力。

高效过滤池:我公司针对各种结构过滤池的料及滤板等关键部位改进,使其产水优越性结构稳定性进一步提高。滤料采用稀土瓷砂滤料,滤板由拼装滤板升级为整体滤板。
稀土瓷砂滤料采用耐酸、耐碱高岭稀土粘土加工成不同规格的圆球形状陶瓷颗粒,1300℃高温烧结而成。强度高、破碎率低,性能稳定,使用寿命长。解决了天然滤料比重单一,泥化产生二氧化硅、有机碳后遗的二次污染问题。主要特点:过滤速度快,截污能力强,反洗周期长。比表面积大,略带吸附性能,对提高水质起了关键作用。反洗时微膨胀滤料相互擦洗,具有反省时间短、反洗彻底。

稀土瓷球垫层:将陶瓷颗粒加工成2.0mm≤Φ≤12mm。它承担滤料的承托层,反洗时不乱层。从上至下分别是:2-4mm、4-8 mm、8-12 mm各100mm厚,其它物理化学性能和稀土瓷砂相同。
整体滤板:我公司根椐工程实践经验得出拼装滤板水平误差难控制、布气布水不均匀(主要是拼装处滤头间隔大)、安装难度大:因为滤池制作难以达到图纸要求尺寸,导致滤板要进行切割。粘接缝长期反洗存在跑料风险。根椐以上缺点我公司对滤板采取现场浇注,一次成型整体滤板,它具有以下特点:
1、 承载力是拼装滤板的1.5倍。
2、 不存在拼接缝隙和水平误差,彻底解决跑料的现象。
3、 滤头布置均匀,滤水不集流、产水速度快;布水、反洗更均匀。
此工艺设备适应于:电厂净化站原水预处理、钢铁厂给水水厂、厂矿企业、城市自来水厂、矿井生产废水。


